30 900 000 Ft
- Property ID: 19632
- Status: ZUM VERKAUF
- Település: Berzence
- Type: HAUS
- Lot size: 1895 m²
- Area: 112 m²
- Bedrooms: 3
- Bathrooms: 1
- Floors: 1
Szerkezeti adatok
- Falszerkezet: Tégla
- Tetőhéjazat: Cserép
- Alap: Beton sávalap
- Födém anyaga: Fafödém
Description
Die Immobilienagentur Levendula bietet ein 112 m² (netto 94 m²) großes, voll ausgestattetes Einfamilienhaus mit 3 Zimmern auf einem 1895 m² großen Grundstück in der ruhigen Straße Dózsa György in Berzence, Kreis Somogy, zum Verkauf an.
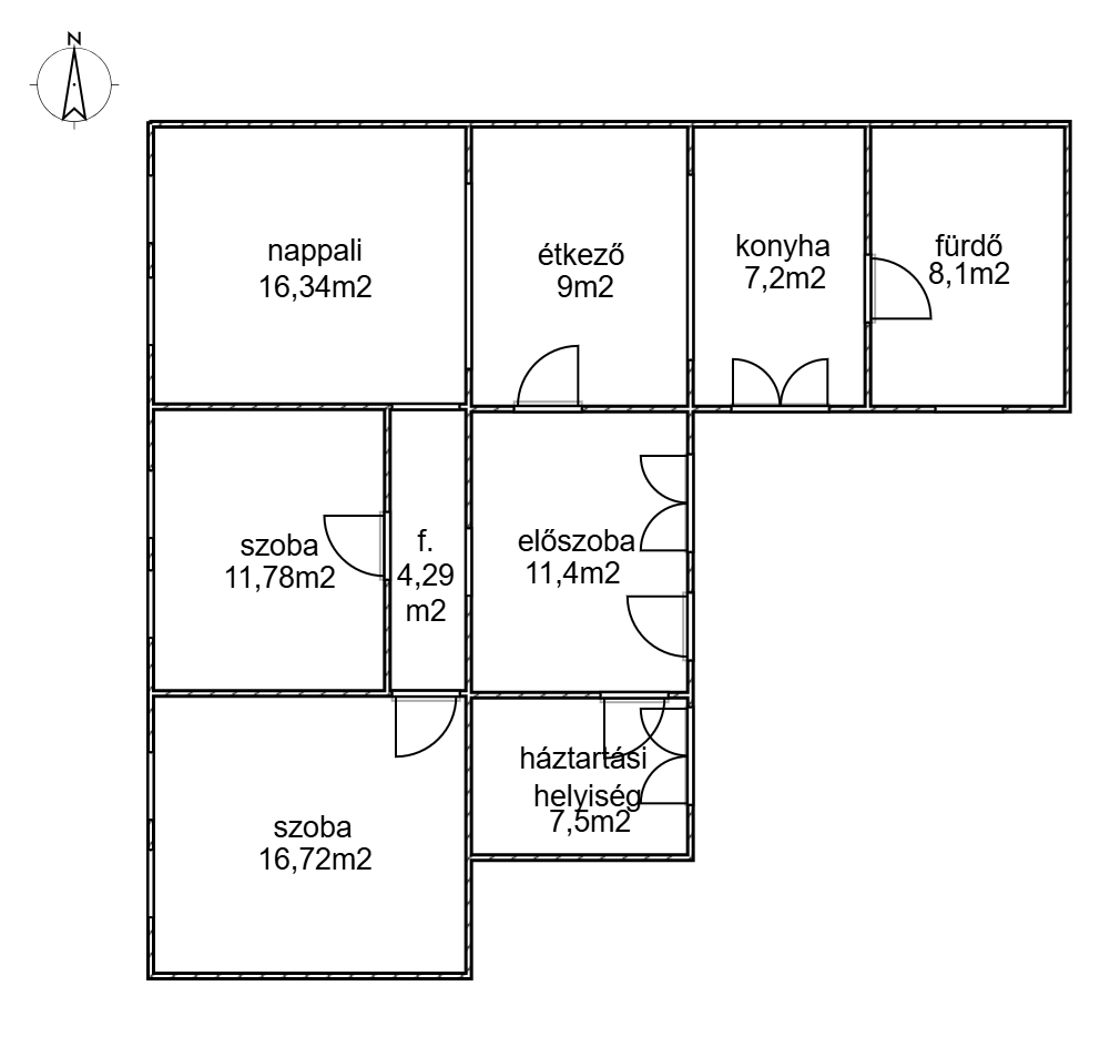
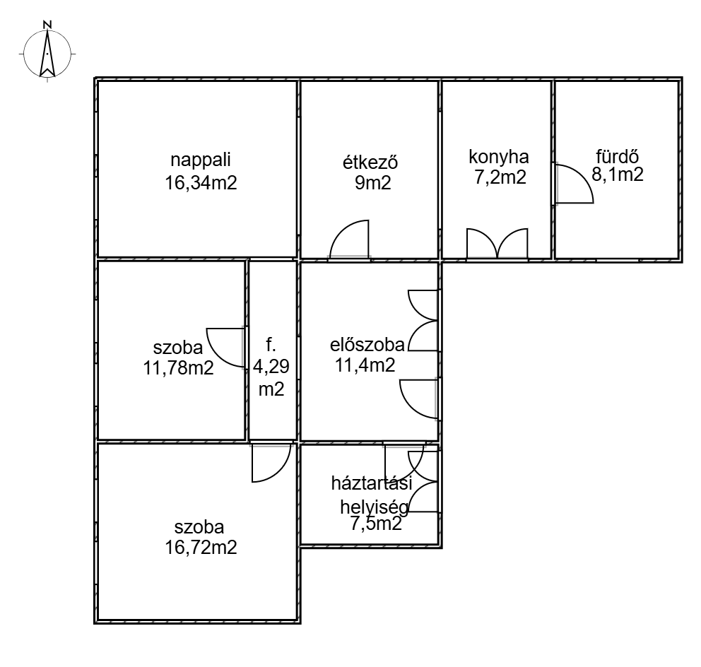
Raumaufteilung:
2 Schlafzimmer, Wohnzimmer, Küche, Esszimmer, Badezimmer, Flur, Hauswirtschaftsraum.
Nebengebäude: Sommerküche, mobiler Abstellraum.
Anschlüsse: Wasser, Strom (Drehstrom), Gas, Abwasserentsorgung.
Das massiv gebaute und mit Ziegeln gedeckte Haus wird mit einer Gastherme beheizt und mit Warmwasser versorgt.
Das Anwesen wurde umfassend renoviert:
Dachsanierung (Ziegel, Dachlatten, Folie, Regenwasserkanal),
neues Betonfundament im gesamten Haus,
Erneuerung der Elektrik,
Erneuerung der Wasserleitungen,
Badsanierung,
Erneuerung der Bodenbeläge,
Anbau (Eingangsbereich und Hauswirtschaftsraum),
Einbau einer Gaszentralheizung,
Deckendämmung,
teilweiser Austausch der Fenster und Türen.
Das Eigentum am Anwesen ist lastenfrei und frei von Rechtsstreitigkeiten.
Berzence ist ein größeres Dorf mit einer Schule, einem Kindergarten, einem Kulturzentrum und einem Sozialzentrum. Zahlreiche Geschäfte und Lebensmittelläden befinden sich in der Nähe.
Die Siedlung liegt 14 Autominuten von Nagyatád, 49 Autominuten von Nagykanizsa und 3 Autostunden von der Adria entfernt.
Wir empfehlen das Haus allen Familien, die sich den Aufwand einer Renovierung ersparen, aber dennoch viel Wohnraum benötigen.
Genießen Sie das friedliche Dorfleben in unmittelbarer Nähe zu Städten und der kroatischen Küste.
Wenn Sie in einem wunderschön renovierten Haus mit Holzbalkendecken wohnen möchten, ist dieses Objekt genau das Richtige für Sie.
Hat diese Anzeige Ihr Interesse geweckt? Dann zögern Sie nicht und kontaktieren Sie mich vertrauensvoll – persönlich in meinem Büro oder unter der oben angegebenen Telefonnummer.
Unser Büro unterstützt Sie bei Bedarf gerne bei der Finanzierungsvermittlung und bietet Ihnen zudem günstige Konditionen für Anwälte und Energieberater.
Preis: 30.900.000 HUF
Features
- Fűtés: Gázkazán
- Fürdő és WC kapcsolata: Egy helyiségben
- Komfortfokozat: Összkomfortos
- Melléképület: Igen
- Villanyvezeték csere: Igen
- Vízvezeték csere: Igen



























